2 Bedroom, Earls Court, SW5

Property ID : LEA0018

SALE £1 For sale  

Facts and Features

Sqft

919

Bedrooms

2

bathrooms

2

RECEPTION

1

Location

Earls Court Square, London, UK

Description

A newly refurbished two double bedroom garden flat in a period conversion situated in the heart of Earls Court. The property comprises fantastic reception room,wood floors, two bedrooms (both with en suite),  modern open-plan kitchen with integrated appliances and a lovely south facing patio to the rear of the property. The property is located close to the local amenities of Earls Court Road with excellent transport links including Earls Court Underground Station (District and Piccadilly lines) and Gloucester Road Underground Station (District, Circle and Piccadilly lines)

Property features

  • Impressive reception with bay fronted windows
  • Modern, open plan kitchen with high specification appliances
  • Two double bedrooms with fitted wardrobes and en suites
  • Balcony accessed via French doors from bedrooms
  • Steps to private garden with space to dine
  • High ceilings and wooden floors
  • Fantastic contemporary décor throughout

 

 

 

 

 

.

Features


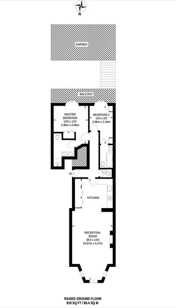
Floor Plans

First Floor

  • Sqft :
Floor Plans

.

Arrange a Viewing

Similar Homes You May Like

Home in Metric Way
featured

One Bedroom Flat in Paddington, W2

The property comprises a modern and bright open Know More

  • 1 Br
  • Ba
  • Sq.ft
  • 1
Home in Metric Way
featured

2 Bedroom, Earls Court, SW5

A newly refurbished two double bedroom garden f Know More

  • 2 Br
  • 2 Ba
  • Sqft Sq.ft
  • 1
Home in Metric Way
featured

3 Bedroom flat, Agnes Street, E14

A well presented aparment which consists of thr Know More

  • 3 Br
  • 2 Ba
  • Sqft Sq.ft
  • `